Description
Camping Pods
Camping Pod, also known as a Glamping Pod, is a great choice for outdoor living. It provides cosy, comfortable and spacious accommodation for up to 4-6 people. The exceptional shape of it blends into the landscape making the sight look very natural and appealing.
Camping Pods enable people to enjoy the great outdoors, therefore are very often chosen by the campsite owners and music festival organisers, who seek to provide their customers with more sophisticated and comfy type of tent.
Also Camping Pods can be perfectly used as beautiful garden or guest house, summer residence, home office, workshop, fishers’ cabin, beach hut, leisure spot or playhouse for the kids.
Produced from the best quality materials, Camping Pods truly represent the unique camping accommodation providing incredible leisure experience.
Luxury-Insulated Camping Pods
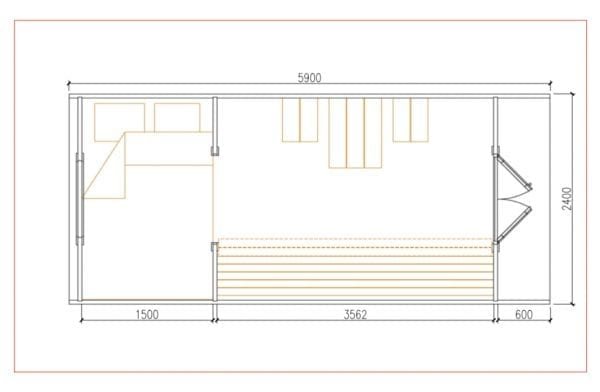
Produced from pine-wood with insulated structure; Luxury-Insulated Camping Pods are designed to be comfortable in different climate conditions. It ensures the Pod is warm, when it is cold outside. Luxury-Insulated Camping Pods, differently from Standard Camping Pods, can have a French style door not only in the front, but also on the side wall of the pod. Luxury-Insulated Camping Pods can be of 2.4 m or 3.25 m width and can be from 3.0 up to 5.9 m length. So of 2.4 m width Camping Pods can be fully completed in the factory and delivered to the destination and of 3.25 width require to be assembled in the determined place.






















Reviews
There are no reviews yet.