Description
Standard log thickness 44 mm. Log thickness 70 mm maybe available on request.
- Double glazed doors and windows
- Double rubber gasket for windows and doors
- Assembly kit (including nails for bitumen shingles)
- Bitumen shingles are supplied as optional extras
- Roof and floor boards from 19 mm thickness, T&G
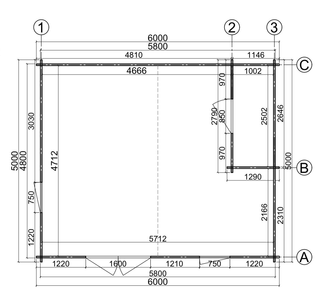
- Partition for WC room 1×2.5m, internal door included
- This model is reversible (during installation)* Rounded notches maybe available on request















Reviews
There are no reviews yet.