Description
Sauna Pods
Sauna pod is a great choice for relaxing and spending great time with your family and friends.
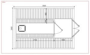
Standard sauna pod is being produced from kiln-dried pinewood or thermo-wood; with a wall thickness of 46 mm and floor of 28 mm.
Pod’s height is 2.6 m, width – 2.4 m and length from 3.0 m to 5.9 m. Sauna pods can be enjoyed from 2 to 8 people.
Standard set of the Sauna Pod includes: pod walls covered with the shingles in a colour of your choice (colours available: black, red, green or grey); French style double glazed door with the lock and standard handle, floor from 28 mm pinewood boards, 1 tempered double glazed inside door, separating sauna and changing room, 2 benches inside sauna and 2 – in changing room, 2 portable benches for the feet rest and heat-resistant plates for heater/stove.
Also a customer may acquire the following sauna accessories: head rest, wooden bucket, wooden ladle, thermometer-hygrometer, sauna lamp and its cover, clothes hanger, back rest, protective fence and water tank for wood burning heaters.
Sauna pods can be delivered both ways: assembled or flat-pack. For those, who choose KIT, manual with visuals for easy assembling is provided.


















Reviews
There are no reviews yet.